Projects and Features
Eurocode early amendments – what have we done?
In this latest article, SCI’s Dr Graham Couchman, former chairman of the ‘Eurocode 4 committee’, explains the process to create Generation 2 Eurocodes and gives some examples of amendments to EN 1994.
As we come towards the end of the roughly 20-year process to create Generation 2 Eurocodes three things are happening. The last of these will be a surprise to many readers. The codes themselves are starting to be published by national standards organisations – BSI in the UK. Those same bodies are creating National Annexes to allow the new codes to be used. So-called early amendments are being agreed upon in the various Eurocode committees.
Dr Graham Couchman’s examples explain something of what has been done and illustrate some of the problems. So, as well as enquiring about what has taken place, ‘what have we done’ is also a rhetorical question, as the reasoning is not always obvious.
The development process
Once it had been decided to update the entire Eurocode suite, and funding had been secured from the European Commission, for each Eurocode Part a so-called Project Team (PT) was established. Members of each team were carefully chosen, although often from a very limited pool of applicants, to give a balance of experience (in particular trying to combine academics and practitioners), and a geographical balance to represent Europe. All members were bound by contracts – volunteers are notoriously difficult to manage, which is something we will refer to shortly. These Project Teams produced draft documents, reviewed at set stages by the sub-committees (SCs) responsible for each Eurocode part. For specific technical guidance, the PTs had access to so-called Working Groups (WGs), recognising that the SC was more of a ‘political’ vehicle including non-technical representatives from organisations such as national standards bodies. It was clear, certainly in the Eurocode 4 context, that the WG would respond to requests from the PTs, not drive the work. The situation was not the same with Eurocode 3. Working Groups are officially recognised by CEN, and open to any volunteer proposed by their national standards body. Clearly that brings dangers as a given member state could attempt to dominate a WG if it had sufficient credible experts, and members of these groups are volunteers. So the process was OK, if potentially flawed and open to abuse.
A problem then arose because according to CEN rules a WG is needed to confirm acceptability of the final technical content of a new code. So, the care to achieve balanced views from PTs was potentially jeopardised. The documents that are now appearing have been finalised (technically) by WGs, responding to late comments made on drafts and in some cases undoing good work from a PT. It is also the case that the WGs are dominated by academics, for many of whom the temptation to resist on-going tinkering seems too strong! One or two countries dominate the WGs for composite and indeed steel construction.
Early amendments
Some believe that early amendments have always been inevitable, if just to update cross-references as new Eurocode parts are published. The first parts published could not refer to documents that were not yet in the public domain. I would argue that is not a valid excuse. The first documents published cannot really be used anyway because they do not form part of a coherent set, and the National Annexes are still not available. It would have made far more sense, to me at least, to hold them back and publish them all in one go, including the NAs. It is understood that some countries plan to use this approach.
Cross-references aside, the opportunity has been taken, I suggest from those in WGs and maybe SCs, to make technical changes to what was created perhaps by others. The overarching committee that governs all this, CEN/TC250, is trying to limit changes to 5%, but it seems there are always excuses to include more.
Not claiming that the trends shown by these are necessarily representative of all Eurocodes, although it would seem quite likely, a review of some of the planned early amendments to BS EN 1994-1-11 is illustrative of some frustrating trends in the Generation 2 documents themselves and their amendments. Some of the changes may not be needed at all, because they would rarely affect practice, or only make a marginal difference to the ‘final answer’. Some indicate a possibly unnecessary desire to reach perfection. There is also a growing trend, evident throughout the Generation 2 process, to produce equations that lack transparency and include indices to three decimal places – enough to raise the eyebrows of a pragmatic engineer. Although it could be argued that design complexity is not overly important when software is used, a growing problem is that of sanity checking output from software when design is based on complex codes.
Planned Eurocode 4 early amendments
Many of the amendments proposed for Part 1-1 are editorial. These include correcting numerous variable notations and their definitions, and minor ‘tweaks’ of English. Whilst annoying, one would imagine a reader would have been able to overcome these ‘errors’ without needing an amendment. One can also imagine that the amendment process has still failed to pick up all such ‘problems’.
Beta factors applied to moment resistance – was such a change from Generation 1 ever needed?
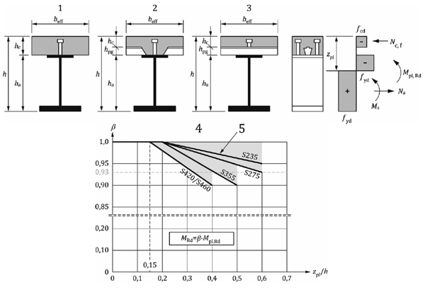
A simplified method for determining cross-section resistance includes the use of a beta factor to reduce the plastic moment resistance of some cross-sections to avoid the concrete crushing before the steel has sufficiently yielded. Steel strength and relative depth of slab are important and when combined could result in so-called strain-governed design in fairly unusual cases. Changes in Generation 2 include that this now affects S355 beams, not just S420/460, and that the beneficial effects of partial shear connection are taken into account (see Figure 1).
Reworking the example given in P3592 – we are in the process of updating this composite guide to cover Generation 2 – suggests this update adds about one and a half pages to the S355 example. As it is a beam with low shear connection (57%), the impact is a trivial reduction in the moment resistance of 1.8%. With full shear connection it would have been 3.2%. Given most composite beams have partial connection, and many are governed by serviceability criteria it hardly seems worth the extra effort.
An early amendment corrects the editorial mistake in the Generation 2 document where formulae for S355 and S460 beams were interchanged (an error in Figure 8.3). Unfortunately, ‘doing it right’ using the planned amendment makes the extra effort for this beam seem even more pointless, as using the correct equation the ‘beta reduction’ for this example is now only 0.59%! Perhaps the Generation 1 approach of not needing to check S355 beams was a sensible pragmatic approach appropriate for most beams? And there I think lies one of the problems – using powerful numerical tools results can be obtained for beams that are so far from the ordinary they may never be built, yet several rules in Eurocode 4 have been made more complex and conservative in order to cover these extremely unusual cases.
Crack control – who cares?
A new (informative) Annex K is proposed. This has the title ‘guidance for the application of clause 9.2.3 refined control of cracking of BS EN 1992-1-13 to composite structures’. This was work carried out relatively late in the process of evolving EN 1992, and due to lack of time to properly assess it, it was rejected as a late change, by those developing EN 1994. The annex is almost three pages long and the words ‘refined control’ are striking. Given how rarely one needs to give consideration to accurate crack control of composite slabs, most of which are used in internal environments and for which the ‘deemed to satisfy’ guidance concerning minimum area of reinforcement, bar size and spacing is described in the code itself as ‘simple and conservative’, it all seems rather pointless. It is unlikely that the UK will adopt this annex.
Changes that lack transparency, and perhaps logic, and are of their time
The below example concerns the ‘SLS stiffness’ of shear studs, which is used to determine how much extra beam deflection one gets with low degrees of shear connection. For information, there was a much simpler approach given in P4054 (taken from BS 5950-3.15) which seems more appropriate for a deflection check unless the shear connection is unusual (e.g. demountable connectors could be significantly less stiff than welded studs so the P405 approach might not apply). The form of the equation below betrays how many new rules have been developed, namely through analysis of large amounts of data apparently without applying consideration of what is physically happening. One cannot help but imagine that if new data came to light some of the second-place decimals in the indices would change! I would also question whether the apparent level of accuracy is appropriate – load-slip curves for shear studs are not exactly bi-linear and the equations below predict stiffness at 50% of the characteristic resistance. Refining that 50% value would change things. The expression below gives stiffnesses that are considerably higher than those that have been traditionally assumed (e.g. 100 kN/mm for a 19mm stud in a solid slab), although the latter have normally been used to assess ULS behaviour. But there is no need for concern over higher values than expected because the beam deflection is very insensitive to connector stiffness anyway!
The proposed expression for the stiffness (for use in beam deflection calculations) of a shear stud in transverse decking is a function of familiar material properties, some geometric terms (height and diameter of the stud), number and position (et) of studs in a trough, and a fiddle factor ks – 1.00 when studs are thru-deck welded (0.89 if not). An alternative expression is given for studs in a solid slab.

A curve fitting approach that results in numbers to two or three decimal places in some expressions is amusing taken in the context of the new Annex G for resistance of shear connectors in transverse trapezoidal sheeting. The UK will not adopt this informative annex because the answers it gives are erratic and generally conservative. It’s ironic because that is the result of a research team who sought a credible mechanical model rather than use the traditional approach of considering lots of push-test results. It seems the credible model was not able to include all the relevant variables whilst still remaining simple enough to use (which it barely is).
Conclusions
The programme to develop Generation 2 Eurocodes had many objectives, and was huge. While some good things have come out of it, with new and improved rules and scopes that reflect modern construction, there are also undeniably poor things as well. Some of the new rules add complexity to design, add conservatism despite no evidence of failures, and may have little relevance to practical solutions. Other changes add complexity but make little difference to the ‘answer’ for practical designs. In future I would propose that code writers should ‘sanity check’ changes against some pragmatic metrics, to ensure the ‘cost-benefit’ is worthwhile before imposing them on designers.
References
- BS EN 1994-1-1 – Eurocode 4 – Design of composite steel and concrete structures – Part 1-1: General rules and rules for buildings. BSI, 2026
- P359 Composite Design of Steel Framed Buildings. SCI, 2011
- BS EN 1992-1-1 – Eurocode 2 – Design of concrete structures. General rules and rules for buildings, bridges and civil engineering structures. BSI, 2023
- P405 Minimum degree of shear connection rules for UK construction to Eurocode 4. SCI, 2015
- BS 5950-3.1:1990 Design in composite construction. Code of practice for design of simple and continuous composite beams. BSI.


